top of page

House Brkinska
type: residential
client: private
location: Koper, Slovenija
project date: 2015
completion date: in progress
floor area: 130 m2
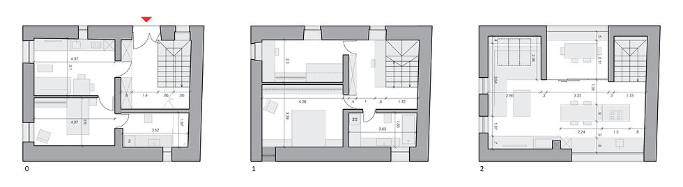
The house is located in the old town of Koper. In remodelling the shell of the building remains untouched. Internally, the house is rebuilt, new concrete slabs are created to ensure stability and floor plans are reconfigured. Also, in order to gain additional living space, the roof is reconstructed, the ridge is moved and now placed in line with the ridge of the neighbour building. With the move more usable floor space is gained in the attic.
​
The biggest addition to the house is an outdoor terrace as part of the enlarged living space.
bottom of page










